Trilocale in vendita

Roma, Via Eligio Possenti - La Storta
€ 199.000
3 locali 3 locali
109 Mq 109 Mq
2 bagni 2 bagni

Trilocale in vendita

Roma, Via Eligio Possenti - La Storta

Descrizione annuncio

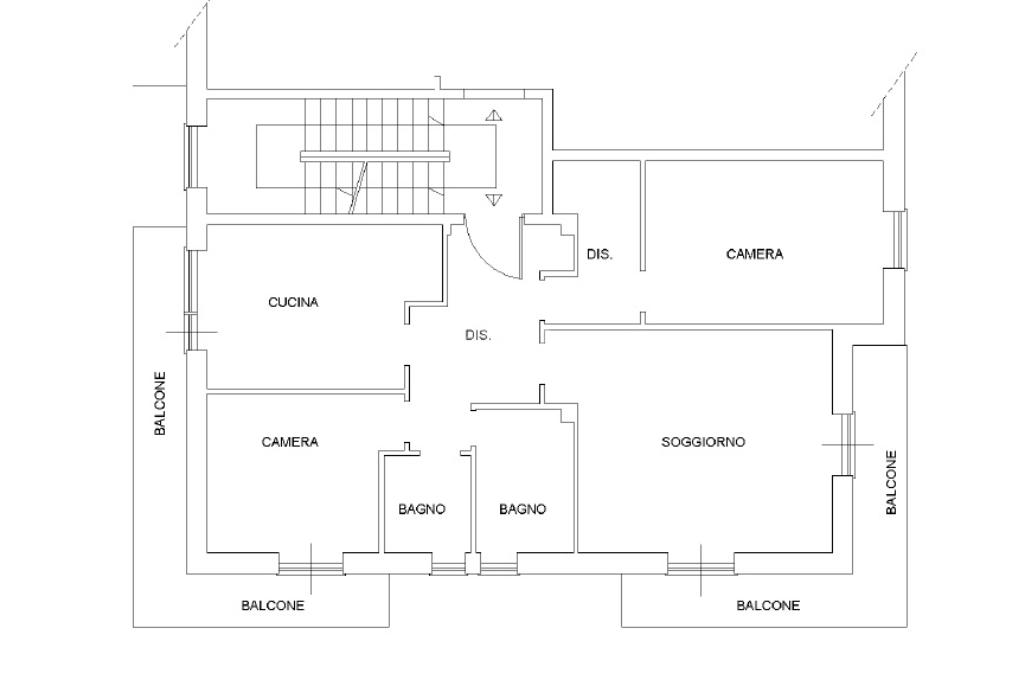
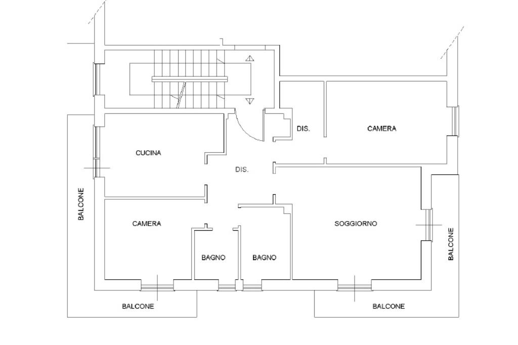
Proponiamo in vendita ampio trilocale di 110 mq, situato al secondo piano senza ascensore, caratterizzato da spazi generosi, ottima distribuzione interna e grande luminosità. L’ingresso avviene su un comodo disimpegno, che consente di organizzare in modo funzionale tutti gli ambienti dell’abitazione.

Il soggiorno, ideale per momenti di relax e convivialità, reso particolarmente luminoso dalla presenza di un doppio balcone angolare con esposizione a sud-est, che assicura luce naturale nelle ore mattutine. A completare la zona giorno troviamo la cucina abitabile, separata, con balcone esposto a ovest, perfetta per vivere appieno lo spazio cucina durante tutto l’arco della giornata.

La zona notte comprende una spaziosa camera matrimoniale, una cameretta con accesso al balcone esposto a sud, versatile e adatta a diverse esigenze e da due bagni entrambi finestrati, uno con vasca e uno con doccia, offrendo comfort e praticità.

Grazie alla tripla esposizione est–sud–ovest e alla presenza di infissi nuovi, l’immobile risulta particolarmente luminoso e arioso durante tutto l’arco della giornata, rappresentando una soluzione ideale per famiglie o per chi desidera ambienti ampi ben distribuiti.

Contattaci subito per prenotare una visita!
Chiama allo 06 30892545
Scrivi su WhatsApp al 351 224414

Mostra tutto

Nelle vicinanze

Trasporto pubblico Trasporto pubblico
Olgiata
Olgiata
700 m
La Storta
La Storta
1,4 Km
Morbelli/Terron
Morbelli/Terron
250 m
Tieri/Ploner
Tieri/Ploner
290 m
Scuole Scuole
Scuola "Edoardo Amaldi"
250 m
Istituto Comprensivo Via Cassia, Km18.700 "Giovanni Soglian"
980 m
Scuola Elementare "Giuseppe Tomassetti"
1,4 Km
St George's British International School
1,6 Km
Scuole
1,9 Km
Farmacia Farmacia
Farmacia Olgiata
880 m
Farmacia
1,5 Km
Supermercati Supermercati
Simply Market
460 m
Supermercati
850 m
EmmePiù
950 m
Todis
1,5 Km
Ipermercato Pewex
2,1 Km
Negozi Negozi
Blokko 11
1,4 Km
Sani's
1,6 Km
Upim
2,4 Km
OVS
2,9 Km
Ristoranti Ristoranti
Ristorantino Poche Pretese
400 m
La Calabrisella
420 m
I 4 Mori
430 m
Bottega35
570 m
Le Piramidi
670 m
Mostra tutto

Caratteristiche

Rif.:
61164436
Piano:
2 di 3 (Piano medio)
Balconi:
3
Camere da letto:
2
Arredamento:
Assente
Condizionamento:
Autonomo
Mostra tutto
Prezzo Prezzo
€ 199.000
Rata mutuo Rata mutuo
€ 938 / mese
Spese annue Spese annue
€ 300
Proponi il tuo prezzoProponi il tuo prezzo

Classe Energetica

G
G
G
G
G
G
G
G
G
EP invernale del fabbricato:
EP estiva del fabbricato:
Anno di costruzione:
1980
Riscaldamento:
Autonomo
Tipo impianto:
A radiatori
Tipo alimentazione:
Metano

Ti interessa visionare l'immobile?

Fissa un appuntamento  Fissa un appuntamento

Richiedi informazioni

Clicca su Leggi per aprire l'informativa
* Questi campi sono obbligatori

Calcola il tuo mutuo

Semplice e senza impegno
Anticipo

( % )
Mutuo

( % )

pochi semplici passi

inserisci i tuoi dati
Questionario completato
Grazie per aver richiesto un appuntamento senza impegno con un nostro Consulente del Credito e Assicurativo.

Hai inserito correttamente tutti i dati necessari e a breve riceverai una e-mail con un link da convalidare per inviare i tuoi dati.
Affiliato
Studio La Storta 1 Srl
P.zza della Visione, 19 00123 Roma (RM)

Il nostro staff


  • Alessandro Proietti
    Affiliato

  • Enrico Ruberto
    Responsabile

  • Chiara Caimi
    Coordinatrice

  • Vincenzo Carone
    Collaboratore

  • Andrea Scavone
    Collaboratore

  • Gabriele Claudio Zurlini
    Collaboratore
P.zza della Visione, 19 00123 Roma (RM)
Zona: Cassia-La Storta-Olgiata
Mostra su mappa
Orari: lunedì - venerdì 9.00-13.00/15.00-19.30; sabato 9.00-13.00
Affiliato
Studio La Storta 1 Srl
P.zza della Visione, 19 00123 Roma (RM)

2026 Tecnocasa Franchising S.p.A. - P. IVA 08365160152 - Via Monte Bianco 60/A 20089 Rozzano (MI). Ogni agenzia ha un proprio titolare ed è autonoma. Privacy policy | Policy utilizzo | Cookie policy