Villa singola in vendita

Roma, Via del Ponte degli Incastri - Cesano
€ 380.000
5 locali 5 locali
300 Mq 300 Mq
3 bagni 3 bagni

Villa singola in vendita

Roma, Via del Ponte degli Incastri - Cesano

Descrizione annuncio

VIA DEL PONTE DEGLI INCASTRI – VILLA UNIFAMILIARE CON AMPIO GIARDINO E PISCINA

Proponiamo in vendita una villa unifamiliare di circa 300 mq calpestabili, sviluppata su due livelli e circondata da un ampio spazio esterno privato con piscina, situata in un contesto riservato e immerso nella tranquillità. La proprietà gode di quadrupla esposizione, caratteristica che garantisce un’ottima luminosità naturale durante tutta la giornata, oltre ad offrire un panorama aperto.

L’immobile è una villa indipendente con doppio accesso carrabile, uno da Via del Ponte degli Incastri e uno da Via Fosso di Cesano, elemento che rende la proprietà particolarmente comoda anche per la gestione degli spazi esterni.

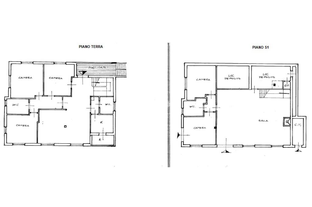
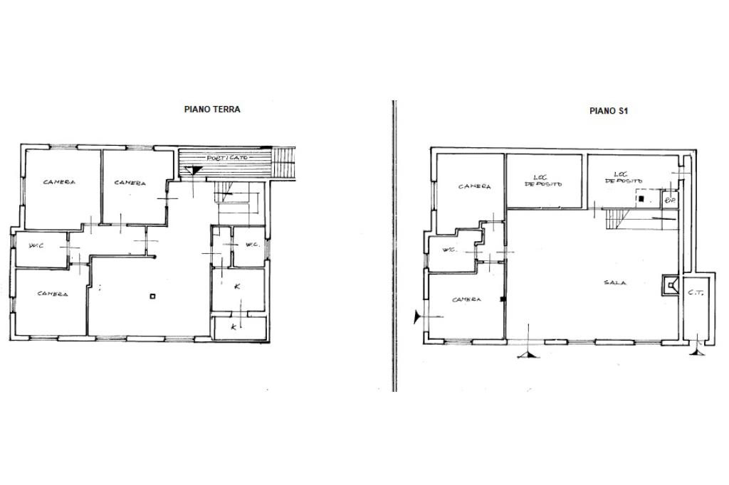
Accedendo al piano terra veniamo accolti da un ampio salone doppio, perfetto per momenti di convivialità e relax. Attraverso un comodo disimpegno si sviluppa la zona notte, composta da tre camere da letto matrimoniali e da un bagno finestrato.

Proseguendo troviamo la cucina abitabile, spaziosa e funzionale, dotata di finestra che rende l’ambiente ben luminoso e arieggiato. A servizio del piano è presente un secondo bagno finestrato.

Scendendo al piano seminterrato si sviluppa una grande sala hobby, ambiente versatile perfetto come area relax o spazio per ospitare amici e familiari, resa luminosa grazie alla porta finestra con uscita diretta sul giardino. Il piano è completato da due ripostigli, due ulteriori camere matrimoniali e un bagno finestrato.

All’esterno la proprietà dispone di ampi spazi verdi, dove sono presenti circa 20 piante di ulivo, oltre alla piscina con zona spogliatoi e ad un campo sportivo, attualmente da restaurare per poter essere nuovamente utilizzati.

Esternamente l’edificio si presenta in buone condizioni, mentre internamente l’immobile è allo stato originale e completamente da ristrutturare, offrendo la possibilità di personalizzare gli ambienti secondo le proprie esigenze abitative.

Si tratta di una soluzione ideale per chi è alla ricerca di una villa indipendente di ampia metratura, immersa nel verde.

Chiamaci per prendere un appuntamento oppure manda un messaggio su WhatsApp per ricevere maggiori informazioni.

Ogni agenzia ha un proprio titolare ed è autonoma – Le presenti informazioni non costituiscono elemento contrattuale.

Mostra tutto

Nelle vicinanze

Trasporto pubblico Trasporto pubblico
Trasporto pubblico
1,8 Km
Cesano di Roma
Cesano di Roma
1,9 Km
Baccanello/Turinetto
Baccanello/Turinetto
610 m
Staz.ne Cesano/Grixoni
Staz.ne Cesano/Grixoni
610 m
Scuole Scuole
Scuola "Leonardo Angelini"
420 m
Istituto Comprensivo "Enzo Biagi"
570 m
Scuola "Michele Periello"
1,3 Km
Marie Curie
2,8 Km
Farmacia Farmacia
Farmacia
860 m
Supermercati Supermercati
Emmepiú
680 m
Coop
760 m
EuroSpin
790 m
Supermercati
2,6 Km
Negozi Negozi
Negozi
2,5 Km
Ristoranti Ristoranti
Osteria del Borgo
1,2 Km
Le due Lune
1,9 Km
Ape Regina
2,2 Km
Mostra tutto

Caratteristiche

Rif.:
61188715
Piano:
Su più livelli di 2
Totale piani:
2
Box:
1
Camere da letto:
5
Arredamento:
Assente
Mostra tutto
Prezzo Prezzo
€ 380.000
Rata mutuo Rata mutuo
€ 1.801 / mese
Spese annue Spese annue
€ 0
Proponi il tuo prezzoProponi il tuo prezzo

Classe Energetica

G
G
G
G
G
G
G
G
G
EP invernale del fabbricato:
EP estiva del fabbricato:
Anno di costruzione:
1980
Riscaldamento:
Assente

Ti interessa visionare l'immobile?

Fissa un appuntamento  Fissa un appuntamento

Richiedi informazioni

Clicca su Leggi per aprire l'informativa
* Questi campi sono obbligatori

Calcola il tuo mutuo

Semplice e senza impegno
Anticipo

( % )
Mutuo

( % )

pochi semplici passi

inserisci i tuoi dati
Questionario completato
Grazie per aver richiesto un appuntamento senza impegno con un nostro Consulente del Credito e Assicurativo.

Hai inserito correttamente tutti i dati necessari e a breve riceverai una e-mail con un link da convalidare per inviare i tuoi dati.
Affiliato
Studio La Storta 1 Srl
P.zza della Visione, 19 00123 Roma (RM)

Il nostro staff


  • Alessandro Proietti
    Affiliato

  • Enrico Ruberto
    Responsabile

  • Chiara Caimi
    Coordinatrice

  • Vincenzo Carone
    Collaboratore

  • Andrea Scavone
    Collaboratore
P.zza della Visione, 19 00123 Roma (RM)
Zona: Cassia-La Storta-Olgiata
Mostra su mappa
Orari: lunedì - venerdì 9.00-13.00/15.00-19.30; sabato 9.00-13.00
Affiliato
Studio La Storta 1 Srl
P.zza della Visione, 19 00123 Roma (RM)

2026 Tecnocasa Franchising S.p.A. - P. IVA 08365160152 - Via Monte Bianco 60/A 20089 Rozzano (MI). Ogni agenzia ha un proprio titolare ed è autonoma. Privacy policy | Policy utilizzo | Cookie policy